Wersja obowiązująca z dnia

Przetarg na najem lokalu usługowego w budynku nr 31 w Stoczku,

WÓJT GMINY KIWITY

Ogłasza przetarg ustny nieograniczony

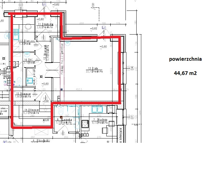
Na najem lokalu usługowego w budynku nr 31 w Stoczku,  o powierzchni 44,67 m2, znajdującego się na działce numer 19/3 o powierzchni 0,07 ha, obręb Stoczek, księga wieczysta OL1L/00029254/4

 

Czynsz z tytułu najmu lokalu usługowego z przeznaczeniem na sklep spożywczo - przemysłowy wynosi 20 zł za 1 m2 powierzchni lokalu plus podatek VAT w wysokości 23%.

Wysokość wadium wynosi 200,00 zł

Kwota postąpienia 2,00 zł

Najemca niezależnie od czynszu ustalonego w drodze przetargu zobowiązany będzie do uiszczania następujących opłat:  podatek od nieruchomości, energia elektryczna oraz zużytą wodę i odprowadzanie ścieków. Projekt umowy najmu określa warunki najmu. Umowa stanowi załącznik do niniejszego ogłoszenia.

Termin i miejsce przetargu: przetarg odbędzie się 28 września 2023 r. o godz. 1000 w siedzibie Urzędu Gminy w Kiwitach w pokoju nr 5. Przetarg poprowadzi Komisja powołana Zarządzeniem Wójta Gminy Kiwity.

 

Warunkiem uczestnictwa w przetargu jest: wniesienie wadium w wysokości podanej wyżej do dnia 22 września 2023 r., na konto Gminy Kiwity: Bank Millenium S.A. Lidzbark Warmiński Nr 14 1160 2202 0000 0000 6193 1366. Za termin wpłacenia wadium przyjmuje się dzień wpływu na wskazane konto.

Osoby przystępujące do przetargu zobowiązane są przedstawić Komisji Przetargowej dokumentu stwierdzającego tożsamość oraz dodatkowo w przypadku:

- podmiotów innych niż fizyczne konieczne jest przedłożenie aktualnego dokumentu, z którego wynika upoważnienie do reprezentowani tego podmiotu (wydruk z centralnej Informacji Krajowego Rejestru Sądowego lub inny dokument potwierdzający formę prowadzenia działalności i sposób reprezentacji uczestnika przetargu). Jeżeli uczestnik jest reprezentowany przez pełnomocnika, konieczne jest przedłożenie pełnomocnictwa w formie aktu notarialnego.

- osoby fizyczne prowadzące działalność gospodarczą przedkładają wydruk z Centralnej Ewidencji i Informacji o Działalności Gospodarczej,

- pełnomocników osób fizycznych – konieczne jest przedłożenie pełnomocnictwa w formie aktu notarialnego.

Osoby przystępujące do przetargu składają oświadczenie, że zapoznały się z warunkami przetargu oraz ze stanem faktycznym i prawnym nieruchomości stanowiącej przedmiot przetargu.

Przetarg jest ważny bez względu na liczbę uczestników, jeżeli chociaż jeden uczestnik zaoferował co najmniej jedno postąpienie powyżej ceny wywoławczej.

Zwrot wadium: wadium wpłacone przez uczestników przetargu, którzy nie wygrali przetargu zostanie zwrócone niezwłocznie, w ciągu 3 dni od odwołania, zamknięcia, unieważnienia lub zakończenia wynikiem negatywnym przetargu, przelewem na wskazany przez uczestnika rachunek bankowy. Wadium wpłacone przez uczestnika, który przetarg wygrał zostanie zaliczone na poczet czynszu najmu lokalu użytkowego.

Wójt Gminy Kiwity zastrzega sobie prawo odwołania przetargu  z ważnej przyczyny.

Szczegółowe informacje odnośnie nieruchomości gruntowej można uzyskać w Urzędzie Gminy w Kiwitach, pokój nr 4 lub pod nr telefonu 089 766 09 95 wew. 204, w godzinach pracy urzędu.

 

Kiwity, 28 sierpnia 2023 r.

Załączniki